Ein Reihenhaus (50m²) aus den 1970-er Jahren soll neu organisiert und instandgesetzt werden
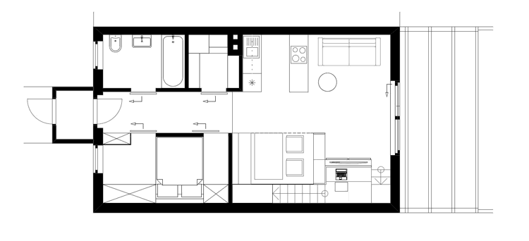
Ein Windfang aus Glas schafft eine neue Pufferzone nach außen und bietet Platz für eine Garderobe. Die Wand zwischen Vorraum und Wohnraum wird entfernt. Der Vorraum wirkt dadurch größer und erlaubt den direkten Blick in den Garten. Satinierte Glasschiebetüren verbessern die natürliche Belichtung im Gebäudeinneren.
Über dem Essplatz wird ein Hochbett in Form einer Schlafgalerie errichtet. Diese kann mittels Textilbahnen vom restlichen Raum abgetrennt werden. Die Galerie wird im Alltag als Rückzugsort und Leseecke genutzt.
Am Aufgang zur Galerie wird ein Zwischenpodest zu einem Arbeitsplatz mit Schreibtisch erweitert. Ein raumhohes Regal trennt die einzelnen Bereiche und ist von mehreren Ebenen aus zugänglich.
